ADU Addition in the city of Oxnard
Detached Garage Conversion

Our Story
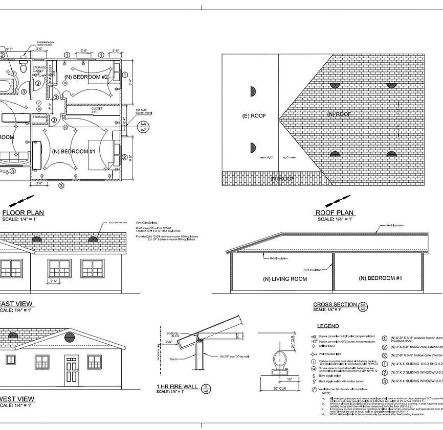
This project involves converting an existing detached 400 sq. ft storage unit into a comfortable and functional ADU in the city of Oxnard, while also adding an additional 350 sq. ft of living space. The newly converted ADU will consist of one bathroom, two bedrooms, a washer and dryer, a fully equipped kitchen, a living space, and an attached patio.
The two bedrooms will be designed to provide maximum comfort and privacy, with ample space for queen-sized beds and other furniture. The bathroom will feature modern fixtures and finishes, including a shower and other necessary amenities. The living space will be spacious and well-lit, offering a comfortable and inviting atmosphere for relaxation and entertainment.
The fully equipped kitchen will feature modern appliances such as a stove, refrigerator, and dishwasher, providing ample space for cooking and dining. The attached patio will offer additional outdoor living space, perfect for enjoying the beautiful California weather.
To optimize the functionality of the ADU, a washer and dryer will also be included, providing the convenience of in-unit laundry. The additional 350 sq. ft of living space will be designed to seamlessly integrate with the existing structure, providing ample room for comfortable living.



