ADU City of Los Angles
Detached 2 Story Conversion

Our Story
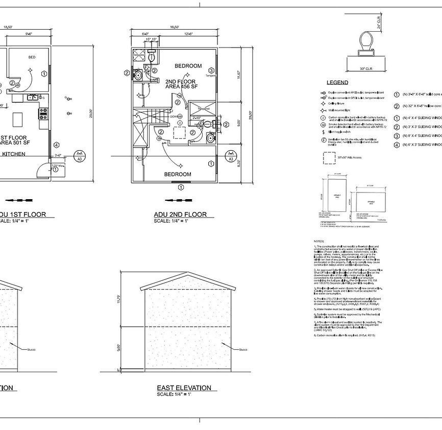
This project involves remodeling an existing single-family dwelling of 1500 sq. ft in the city of Los Angeles, and adding a JADU and a brand new attached ADU to the rear of the property. The JADU will occupy 500 sq. ft of existing space, and will feature one bedroom, one bathroom, and one kitchen.
The bedroom will be designed to provide maximum comfort and privacy, with ample space for a queen-sized bed and other furniture. The bathroom will feature modern fixtures and finishes, with a shower and other amenities to ensure maximum comfort and convenience. The kitchen will be equipped with a stove, refrigerator, and other necessary appliances, providing ample space for cooking and dining.
The brand new attached ADU will occupy 800 sq. ft of space, and will include one bedroom, one bathroom, one office space, and one kitchen. The bedroom will be designed to provide maximum comfort and privacy, with ample space for a king-sized bed and other furniture. The bathroom will feature modern fixtures and finishes, with a shower and other amenities to ensure maximum comfort and convenience.
The kitchen will be equipped with a stove, refrigerator, and other necessary appliances, providing ample space for cooking and dining. The office space will be designed to accommodate a comfortable workspace, with plenty of natural light and privacy.
Overall, this remodel and addition project in the city of Los Angeles will create a stylish and functional living space for families and individuals looking for ample living space and rental income. The new JADU and attached ADU will feature modern finishes and fixtures,



