ADU City of LA County
4 Car Garage Conversion to 2 Detached ADU's

Our Story
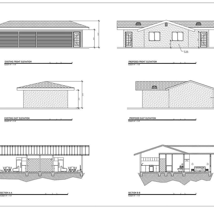
In the bustling city of Los Angeles, we were proposing a project that will transform a 4 car garage on an existing multi-family lot into two brand new detached ADUs. To ensure that the project was approved and construction costs are minimized, we followed the guidelines provided by the state of California.
As experienced builders and designers, we understand the importance of maximizing profits for our clients. That's why we carefully analyzed the existing garage structure to try and save as many existing walls as possible. By doing this, we can save on construction costs and ensure a seamless integration with the surrounding architecture.
Each of the newly created ADUs will feature a single bedroom, a single bathroom, and a single kitchen. Despite the limited space, we have designed the open-plan living spaces to be functional, comfortable, and modern. Natural light will be a key feature of the design, creating a bright and welcoming atmosphere.
Our team has completed numerous similar projects throughout the greater Los Angeles area, making us well-equipped to help investors maximize their profits through this type of construction. If you're interested in learning more about how we can help you create your own ADUs, please don't hesitate to contact us.



