ADU City of Fullerton
Detached Garage Conversion

Our Story
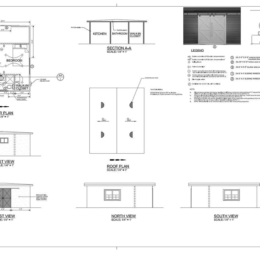
This project involves converting an existing 400 square feet space in the city of Fullerton into a new detached ADU. The ADU will be a cozy living space consisting of a bathroom and a kitchen, perfect for singles or couples.
The bathroom will feature modern fixtures and finishes, with a shower and other amenities to ensure maximum comfort and convenience. The kitchen will be equipped with a stove, refrigerator, and other necessary appliances, providing ample space for cooking and dining.
The design of this ADU will make optimal use of the available space, creating an open and welcoming atmosphere. The living area will be designed to accommodate a comfortable seating area, as well as a small dining space.
Overall, this new detached ADU in Fullerton will provide a stylish and functional living space for individuals or couples looking for a compact and affordable housing option.


